︎
isu
architecture
collected student works
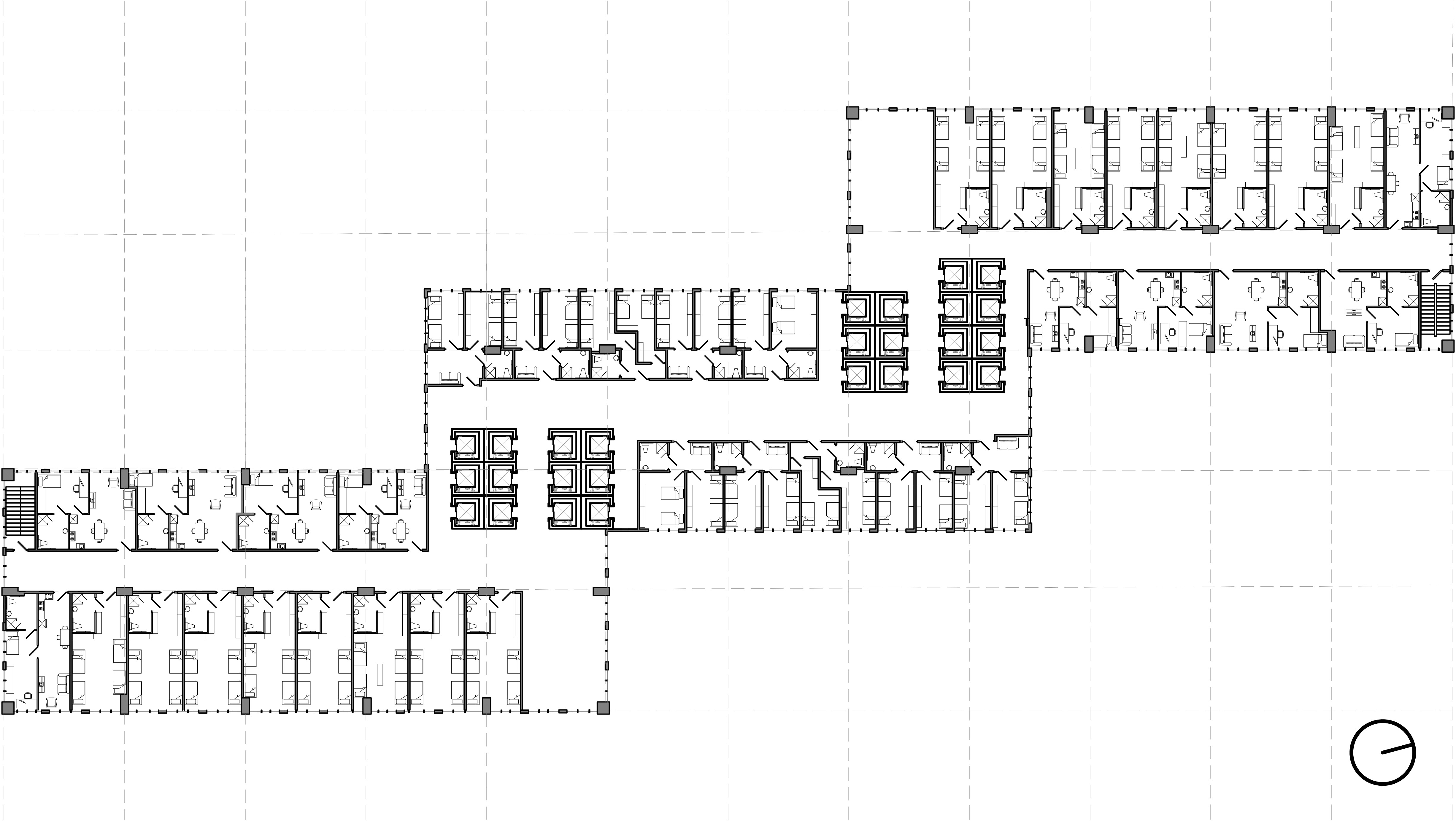
UniverCITY
Mona Baghdadi
Alyssa Mullen
Easton Sothman
Fifth year BARCH studio
Instructor: Tom Leslie